imobiliare .net
Login
Inregistrare
Anunt
Tur 360
Alerte
Favorite
Mesagerie
RO
Favorit
Sesizeaza neregula

Apartament 2 Camere Iancului Slt. Dima Cristescu

An constructie
1980
Suprafata
49 m2
Confort
I
Tip apartament
semidecomandat
Etaj
7 / 10
Tip imobil
4
Nr. dormitoare
1
Stare constructie
Constructie finalizata
Nr. bai
1
CE clasa
B
ID
315864049

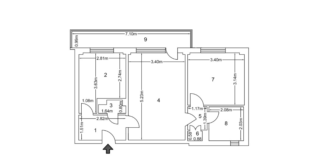
Apartament 2 camere zona Iancului
Apartament aflat in renovare, cu o suprafață totala de 55.6 mp și amplasat la etajul 7 din 10, într-un bloc construit în 1980.
Apartamentul va fi renovat integral, cu instalațiile electrică și sanitară schimbate, finisaje noi (parchet, gresie, faianță) și uși înlocuite. In curs de renovare.


  • Usa metalica
  • Termopan
  • Bucatarie inchisa
  • Apometre