imobiliare .net
Login
Inregistrare
Anunt
Tur 360
Alerte
Favorite
Mesagerie
RO
Favorit
Sesizeaza neregula

Apartamente 2 camere / Sala Palatului/ Cismigiu

An constructie
1959
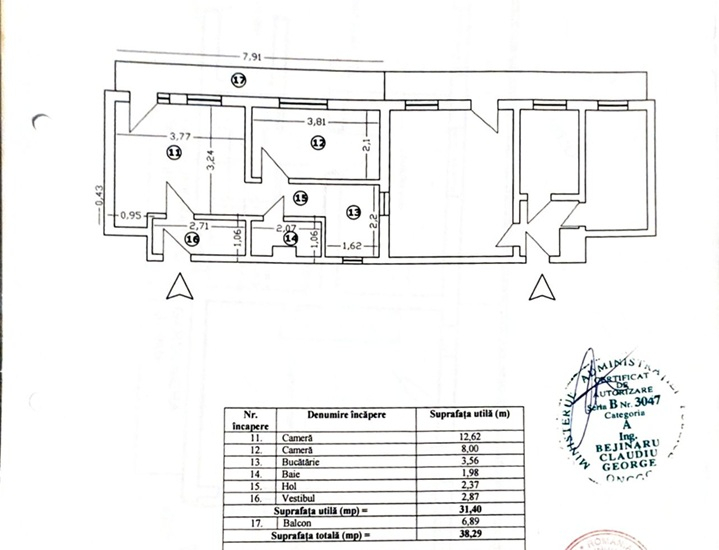
Suprafata
31 m2
Confort
II
Tip apartament
semidecomandat
Etaj
9 / 9
Tip imobil
4
Nr. dormitoare
1
Stare constructie
Constructie finalizata
Nr. bai
1
ID
315862111

Descoperiți oportunitatea ideală de a deveni proprietar într-una dintre cele mai căutate zone din București, în zona Cişmigiu, langa Sala Palatului, într-un imobil ultracentral, cu o istorie solidă și o poziție privilegiată.

Descrierea apartamentului:
- Tipul: apartament cu 2 camere, semidecomandat, confort II, perfect pentru cei care apreciază un spațiu bine organizat și funcțional.
- Suprafață utilă: 31 de metri pătrați, optimizați pentru confort și eficiență.
- Etajul: 9 din cele 9, oferind o panoramă plăcută asupra orașului.
- Stare de întreținere: pregătit pentru mutare.

Beneficii și avantajele locației:
- Situat în zona Cişmigiu, în apropiere de principalele puncte de interes ale capitalei.
- Blocul se afla langa Sala Palatului.
- Acces rapid la facilități, transport în comun și servicii diverse.
- Blocul nu este încadrat cu risc seismic sau urgență, astfel poate fi achiziționat atât cu plata cash, cât și credit ipotecar.
- Un imobil cu istorie, într-o zonă vibrantă și plină de viață.

Contactați-ne pentru o vizionare și pentru a descoperi toate avantajele acestei oferte unice. Echipa noastră vă stă la dispoziție pentru a vă ghida pas cu pas în procesul de achiziție sau închiriere, asigurându-vă cele mai bune soluții adaptate nevoilor dumneavoastră.


  • Aer conditionat
  • Usa metalica
  • Termopan
  • Bucatarie inchisa
  • Apometre