imobiliare .net
Login
Inregistrare
Anunt
Tur 360
Alerte
Favorite
Mesagerie
RO
Favorit
Sesizeaza neregula
An constructie
2026
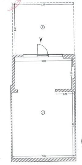
Suprafata
90 m2
ID
2882950

Spațiu comercial nou situat la parterul blocului cu o suprafață de 90,2 mp și o terasă de 43 mp, inclus un loc de parcare de 12,5 mp, dotat cu stație de încărcare electrică 7.4 kWh, contorizată individual. Amenajarea și utilarea sunt noi, realizate conform normelor PSI. Spațiul este la prima închiriere avand curent trifazic (15 kWh), apă, climatizare • Dotări PSI: senzori de fum (4), hidrant, stingătoare, buton incendiu, sirenă, iluminat de urgență/evacuare • Posibilitate de compartimentare flexibilă în funcție de activitate • Acces facil, atât pietonal, cât și auto . Spațiul este amplasat într-o zonă cu vad comercial foarte bun, potrivit pentru diverse tipuri de activități comerciale sau de servicii.



Pozitia pe harta